小米的AX系列路由器产品至今为止已经推出了三代产品,从最开始的AX3600和AX6000快速普及WiFi6技术,到如今的AX9000正式向高端领域进攻,小米仅仅用了一年的时间。尤其是今年的AX9000路由器在外观、技术等诸多方面都有不错的升级,且让我们来看看它究竟表现如何。
首先是外观方面,AX9000不论从哪个角度看上去都极具未来感,甚至完全没有了之前AX系列两款产品的设计基因,从远处看上去更像是一个外星飞船的样子。
AX9000共计有4组12根天线,每一根天线也都伴随着对应的信号放大器。这4组天线可以呈现出三种开合角度,从收紧到张开,也可以适应不同的桌面空间,不过日常使用的时候还是建议天线完全张开,以此来实现更好的信号覆盖面积。
AX9000的顶端位置有四条LED灯带+小米logo,这四条灯带可以在设置中进行1600万色的随意调节以及呼吸灯、渐变等各种灯效。
侧边位置包围一周的散热格栅,对于这样的一个“大家伙”来说,将内部的热量散发出来绝非易事,所以小米在内部中心位置放置了一枚风扇和散热鳍片,而四周我们看到的格栅也正是散热用的风道。
除了风扇之外,主板背面还有大面积的金属散热板,所有的核心主板元件上都覆盖了导热硅脂和,可以说是将散热进行到了最大化。
接口部分,今年的AX9000共计有四个千兆LAN接口和一个2.5G WAN接口,这枚WAN接口可以实现千兆级别的宽带接入,绝对满足日常家庭的网络需求,甚至在未来几年时间里不过时。
同时AX9000也配备了USB 3.0接口,可以外接一些U盘和硬盘类的产品,这样家里的手机、pad都可以快速访问局域网内容,轻松调取存储内的文件资源。
根据我们的实际测试,在插入USB 3.0规格的U盘后,打开SAMBA和USB 3.0开关之后可以在几秒内下载完一个230MB左右的影片,即便是动辄几G、十几G的内容也不会耽误太久时间。
体验方面,小米AX9000依旧是保持了小米产品一如既往地快速连接传统,在小米11 Ultra上可以通过米家快速发现并设置路由器。
在设置中我们就可以看到上边提到的USB3.0下载和LED灯组调节,同时细心的朋友也可以观察到小米AX9000在常规的2.4GHz(1148Mbps)和5GHz(2404Mbps)之外还增加了5G Gaming(4804Mbps)频段。而5G Gaming频段就是在此前双频WiFi6的基础上增加的4x4 AX@160MHz 5G电竞频段,采用了堵了的WiFi芯片和天线,三个频段之间互不干扰。
这样就可以在其余设备使用2.4G或5G频段的同时进行畅快的低延迟游戏体验,非常适合家里设备较多且对于游戏延迟有较高要求的用户。
小米AX9000路由器的4K QAM技术也非常值得一说。
AX9000采用了高通最新的IPQ8072六核心芯片,采用了14nm的制程工艺,且支持双核1.7GHz的NPU单元。整体芯片算力可以达到20240DMIPS,这也是目前行业内算力最高的一款旗舰芯片,NPU单元则专门用来处理数据包快速转发,减少CPU占用避免丢包。
高通4K QAM调制解调技术可以将最高QAM速率从1024K提升至4096K,数据密度更高,同一时间传输更多的数据,可以让5G频段的握手速率增加约20%。当其匹配采用高通骁龙888芯片的手机产品时可以获得更高的连接速率。
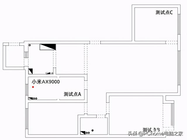
接下来话不多说进入实测,我们公司的面积大概在200平左右,信号可以完美的覆盖到任何角落,即便是位置稍偏且隔着两堵墙的储物间可以收到WiFi信号。
信号强度方面,AX9000的在设置为穿墙模式之后的信号强度确实要优于我们此前使用的华硕八爪鱼路由器。经过我们的网速实测,在A/B/C三个点测试的结果如下:
信号强度均强于“PChome”WiFi信号
分别为A/B/C点测试数据
在公司的千兆宽带之下,AX9000的661Mbps的速率已经是一个非常不错的成绩了,即便是在经历了有实体墙和大门的阻碍之后,网络速率有一定衰减,也都达到了234Mbps的速率,可以说是很好的覆盖了屋内的各种死角地区。
如果是一些复式结构或者房屋面积更大的话,AX900也支持Mesh模式,且AX9000的三频Mesh有独立回程,多台路由器之间有独立连接频段(160MHz的5G频段),不影响其他频段的使用。
作为一款售价999元的路由器产品来说,AX9000几乎是抢走了行业内其他所有产品的饭碗,除去极为夸张的外观使得其在欣赏或摆放时并不能得到每个人的认可,但其产品价格和产品力都已经是无可挑剔。如果你准备升级一款旗舰路由器的话,小米AX9000绝对不失为一个优秀的选择,尤其是其在未来的三五年时间里都不会过时,是一款可以一步到位的绝佳产品。


发表评论
◎欢迎参与讨论,请在这里发表您的看法、交流您的观点。