家庭无线覆盖的痛点:
单个路由器无线无法全覆盖,那么再买个路由呗!多个路由器确实信号全覆盖了,但是手机只有2个。路由器1在客厅,路由器2在房间,但经常从厅里回到卧室经常还会连着厅里的wifi,信号很差那种,总需要重连。于是百度各种AP大法,路由器2设置成AP模式,同时把SSID的WIFI名称和密码设成和路由1同,不得不说这种方法比原来强很多,手机能够自己在客厅和房间的路由上自动切换了,不用手动去点了,但是还是有不小的概率出现手机还连接在信号差的那个路由上。为了解决这些痛点不得不考虑新的方案。
AiMesh方案:
最后选择AiMesh方案,原因有很多。首先实现了无缝漫游,实现了所有的路由器一个SSID,自动切换到信号好的路由器。之前也在百度做了不少功课,说实话现在能解决无缝漫游Mesh方案并不少,500多一对的也不在少数,但是这是以牺牲性能和功能为代价的,说白了就是以牺牲带机量和丰富的功能来实现的,比如说你想带个硬盘当NAS可以洗洗睡了。而带机量大、功能强的动辄小2000了,选择的余地并不大。
那为什么不考虑AC+AP?把面板型的AP不漂亮不舒服吗?上图说明了一切。这也是我选择AiMesh初衷:扩展性强。贵到6000多便宜到400多都可以选择,完全可以根据自己的需求和经济条件选择最适合自己家情况的路由器来组合。最可贵的一点是升级方便,面板型的AP+AC方案一旦升级,整套更换成本太高,而使用AiMesh方案原路由器可以作为副节点,升级主路由就行一点都不浪费,N年前的AC68U都还可以通过升级固件来实现AiMesh。
另外就是功能,可以通过梅林固件解锁所有功能,这个大家都懂的:挂硬盘可以当NAS用,挂打印机实现无线打印,这还不包括带宽合并和KMS等神操作。所以既要实现无线漫游,又想不失去丰富功能,除了AiMesh我别无选择。
考虑到性价比和需求结合了不同的方案:
1. 两台AX56U V2方案:性价比最高,不到900实现了全屋漫游,而且支持目前较新的WIFI6方案,能实现无线千兆。缺点就是只有2X2设计,如果家里没有WIFI6的终端,5G的速度较低,最高仅867Mbps,当然目前很多手机最高也只有2X2设计,应该是适合绝大多数家庭的,但我却有4X4的PCIE AC88,所以这个并不适合我。
2. 两台AX82U方案: 4X4的设计,不但支持WIFI6而且连WIFI5都可以达到4333Mbps,该有的都有了,唯一的遗憾就是价格需要2000。
3. 两台AC86U方案:4X4的设计,5G可以达到2167Mbps配合我的PCIE AC88网卡无线速度不是问题,缺点就是不支持WIFI6,而我家里目前支持WIFI6的终端很少,反而对WIFI6的需求并不是那么迫切。价格对我来说也比较适合,所以最终确定这个方案。之所以不用AX68U是因为3X3支持的终端比较少,双12特价还不如直接AX87U更好。
简单地开箱:
包装上可以看到醒目的2900M双频字样,2.4GHz最高可达 750 Mbps,5GHz最高可达 2167 Mbps配合我的PCE AC88完全可以实现无线千兆速度。
在配件上一应俱全,为了方便新用户的使用,放置了快速设置说明。
在天线的设计上采用了3+1的方案,即3条全向天线加上一条内置天线,使用前需要自己安装天线。
将天线分体式设计的好处就是可以自己更换增益更高的天线。
华硕RT-AC86U正面采用多面体的设计,具有很强的科技感。在指示灯的设计上较为全面,每一个网口都对应一个指示灯可以很方便地发现问题。
背面为一个WAN口4个LAN口其中LAN1可以设置成WAN口实现又拔和多线合并等特殊功能。
侧面设计和WIFI开关和WPS开关。
在USB接口上一个USB3.0接口和一个USB2.0接口,可以挂移动硬盘实现文件共享等服务,也可以刷梅林通过AIAR2实现BT下载等应用。
使用体验:
先对不同连接方式下的无线性能进行测试,使用PCE AC88和RT-AC86U走5G连接。
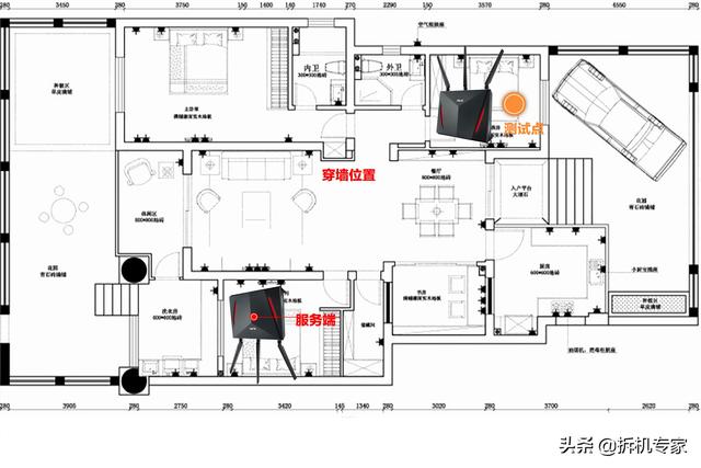
为了实现家里无线全覆盖,一台路由器放在餐厅。
另外一台放在客厅。
路由器共五个模式,默认的路由模式即单路由使用方式,可以PPPOE拔号让手机走WIFI上网。AP模式适合不同品牌的多个路由,用这个模式把信号覆盖出来,采用有线回程。中继模式通过无线扩展信号采用无线回程,无线桥接只是把两台路由之间用无线通讯,终端用网线和路由连接,无线桥接并不适合家里无线扩展使用。
而AiMesh模式可以有线回程也可以无线回程实现无线漫游,但必须是华硕路由器。为了进一步了解各种模式下的性能区对,于是对可用于家庭无线扩展的AP模式、中继模式、AiMesh模式进行了对比。
首先是不穿墙的情况下,采用有线回程和无线回程两种方式进行测试。
然后在穿墙模式下用无线回程再次进行测试。
测试工具采用专业的lxchariot进行。
在不穿墙的情况下用有线回程,发现走无线回程的中继模式性能最低,差不多锐减一半,而AiMesh和AP模式非常接近默认路由器的性能,而AiMesh模式性能略高于AP模式,可见AiMesh的效率高于AP模式。
再加入AiMesh的无线回程模式,走无线回程后AiMesh的效率锐减,无线的效率比中继模式还底,可见AiMesh走有线回程是佳模式。
穿墙后和中继模式比较,AiMesh格式比中继模式好不少,在实在没有条件的情况下用AiMesh走无线漫游比中继模式要强上不少。不过还是建议家里尽量创造条件走有线回程的AiMesh来实现无线漫游,这个模式最佳。
现在从主卧走到小房间可以看到可以实现自动漫游,解决了之前信号不好的困扰,也解决了用AP模式下信号切换时灵时不灵的问题。而在切换的速度上在100MS以内,基本没有什么明显的感觉。
解决大型活动的无限需求:
之前举行了全区的一次党员活动,需要在保证40个平板无线流畅的情况下进行直播推流。
同时还要保证会场50多万人的手机上网。于是我临时使用了2台RT-AC86U走有线回程的AiMesh,两台路由器一台放置会场前离平板近的位置,并将非编服务器和推流主机用网线接入。另外一台放置在会场中间,这样让2台路由器通过AiMesh自动匹配,多数平板走路由器1,多数手机走路由器2保证活动的正常开展。
从实际效果上来看,活动中即时互动的几个环节都很流畅,像这种选择题等可以很快收会答案并展示结果。
而这时的非编服务器推流也流畅,外网走的是100MBPS的专线,推流到奥威亚专用平台,确保了活动现场的流畅及全区在线观看的流畅。两台RT-AC86U扛起了100多个终端的使用而没有死机,稳定性还是值得肯定的。
小结:一段时间的使用下来,用2台RT-AC86U走有线回程的AiMesh最大的感觉就是稳,解决了全室无线漫游的困扰,同时长期开机不会像几百块的路由那样出现假死的问题。带起上百个终端都扛得住,家里十几个终端上网一点问题也没有。同时可以刷梅林解锁更多的功能,实现软件激活,当NAS用也不是问题。唯一的不足就是不支持WIFI6,虽然我用PCE AC88网卡的无线速度并不比WIFI6低,但是随着目前新笔记本、手机等越来越多的产品支持WIFI6,不支持WIFI6的RT-AC86U多少有些遗憾。








发表评论
◎欢迎参与讨论,请在这里发表您的看法、交流您的观点。